Follow Us:
Call Us: +91 9371799099

Why Choose Neopeak Dairy Tech for Dairy Farm Consultancy in India?

We combine expert guidance, SOP-driven management, and end-to-end setup support to build profitable, future-ready dairy farms across India. As India's leading dairy farm consultancy, we ensure your success in the competitive Indian dairy market.

Complete Dairy Setup A–Z

From layout design to cattle purchase—one partner for your entire journey.

Expert Team Support

Architects, nutritionists, and farm specialists aligned to your goals.

Long-Term Assistance

We stay with you till the first lactation cycle and beyond.

SOP-Driven Management

Standardized processes that ensure efficiency and profitability.

Our Comprehensive Dairy Farm Consultancy Services Across India

Dairy Farm Consultancy Services

Expert guidance for building successful dairy farms across India with cutting-edge technology and sustainable practices. Our dairy farm consultancy services cover all major states including Maharashtra, Gujarat, Karnataka, and more.

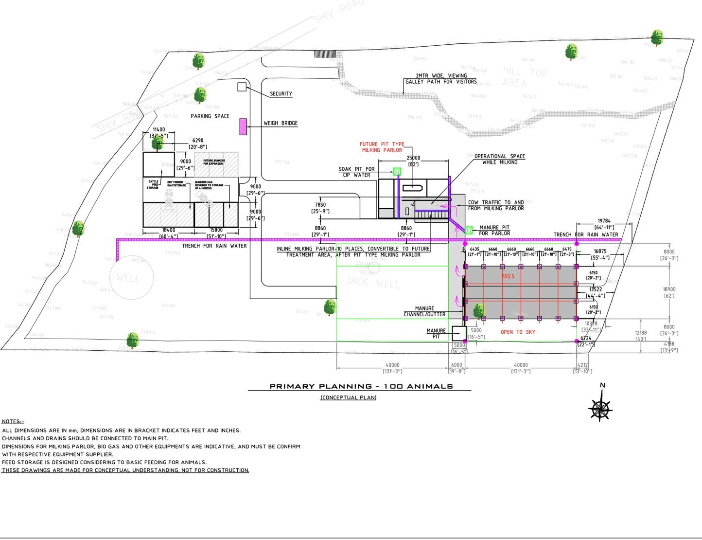
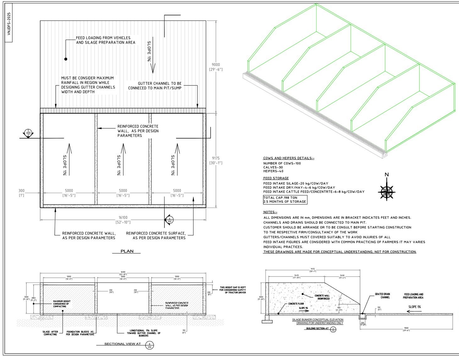
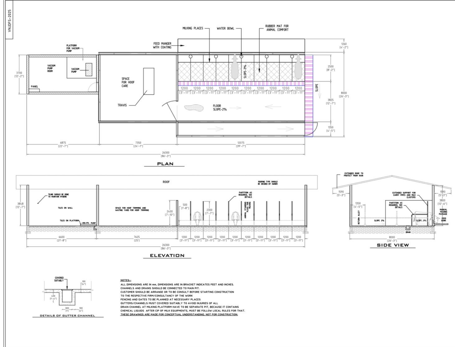
Farm Planning & Layout Design
Farm Planning
Farm Planning & Layout Design

A well-planned dairy farm is key to efficiency and profitability. Our architects and landscaping experts design optimized farm layouts that maximize productivity and animal welfare.

Farm Construction Monitoring
Farm Construction
Farm Construction Monitoring

We oversee the entire farm construction process, ensuring it meets industry standards while staying within budget and timeline constraints.

Cattle Selection & Procurement
Cattle Selection
Cattle Selection & Procurement

Choosing the right cattle is crucial for high milk yield and farm profitability. We help you select the best breeds and healthy animals for your specific needs.

Chat with us